Page 709 - Demo
P. 709
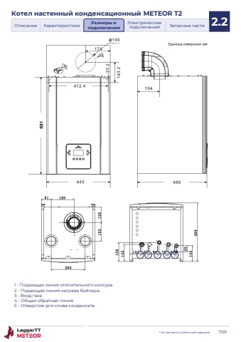
2.2%u0425%u0430%u0440%u0430%u043a%u0442%u0435%u0440%u0438%u0441%u0442%u0438%u043a%u0438%u0425%u0430%u0440%u0430%u043a%u0442%u0435%u0440%u0438%u0441%u0442%u0438%u043a%u0438%u041e%u043f%u0438%u0441%u0430%u043d%u0438%u0435%u042d%u043b%u0435%u043a%u0442%u0440%u0438%u0447%u0435%u0441%u043a%u0438%u0435 %u043f%u043e%u0434%u043a%u043b%u044e%u0447%u0435%u043d%u0438%u044f%u042d%u043b%u0435%u043a%u0442%u0440%u0438%u0447%u0435%u0441%u043a%u0438%u0435 %u043f%u043e%u0434%u043a%u043b%u044e%u0447%u0435%u043d%u0438%u044f%u0417%u0430%u043f%u0430%u0441%u043d%u044b%u0435 %u0447%u0430%u0441%u0442%u0438%u0417%u0430%u043f%u0430%u0441%u043d%u044b%u0435 %u0447%u0430%u0441%u0442%u0438%u0420%u0430%u0437%u043c%u0435%u0440%u044b %u0438 %u043f%u043e%u0434%u043a%u043b%u044e%u0447%u0435%u043d%u0438%u044f%u0420%u0430%u0437%u043c%u0435%u0440%u044b %u0438 %u043f%u043e%u0434%u043a%u043b%u044e%u0447%u0435%u043d%u0438%u044f* %u041d%u0435 %u044f%u0432%u043b%u044f%u0435%u0442%u0441%u044f %u043f%u0443%u0431%u043b%u0438%u0447%u043d%u043e%u0439 %u043e%u0444%u0435%u0440%u0442%u043e%u0439.%u041a%u043e%u0442%u0435%u043b %u043d%u0430%u0441%u0442%u0435%u043d%u043d%u044b%u0439 %u043a%u043e%u043d%u0434%u0435%u043d%u0441%u0430%u0446%u0438%u043e%u043d%u043d%u044b%u0439 METEOR T2%u041a%u043e%u0442%u0435%u043b %u043d%u0430%u0441%u0442%u0435%u043d%u043d%u044b%u0439 %u043a%u043e%u043d%u0434%u0435%u043d%u0441%u0430%u0446%u0438%u043e%u043d%u043d%u044b%u0439 METEOR T27091 -%u041f%u043e%u0434%u0430%u044e%u0449%u0430%u044f %u043b%u0438%u043d%u0438%u044f %u043e%u0442%u043e%u043f%u0438%u0442%u0435%u043b%u044c%u043d%u043e%u0433%u043e %u043a%u043e%u043d%u0442%u0443%u0440%u04302 %u041f%u043e%u0434%u0430%u044e%u0449%u0430%u044f %u043b%u0438%u043d%u0438%u044f %u043d%u0430%u0433%u0440%u0435%u0432%u0430 %u0431%u043e%u0439%u043b%u0435%u0440%u04303 -%u0412%u0445%u043e%u0434 %u0433%u0430%u0437%u04304 -%u041e%u0431%u0449%u0430%u044f %u043e%u0431%u0440%u0430%u0442%u043d%u0430%u044f %u043b%u0438%u043d%u0438%u044f5 %u041e%u0442%u0432%u0435%u0440%u0441%u0442%u0438%u0435 %u0434%u043b%u044f %u0441%u043b%u0438%u0432%u0430 %u043a%u043e%u043d%u0434%u0435%u043d%u0441%u0430%u0442%u043012345

